Inicio de sesión
Usuario o contraseña incorrectos.

Cuenta de mancomunidad

ID Descripción Cantidad Tipo Fecha Documento

Documentacion

Tela asfaltica
ID Descripción Documento
1 Proyecto Inicial Valoración Memoria económica Proyecto
2 Protecto terrado AB Poliuretà
3 Informe Pericial
4 Informe del presidente

Planta baja

Planta baja

Terrados

Terrados

Garaje

Parking

Derrama proyecto

Zona AB
Imagen 1
Imagen 2
Imagen 3
Cata realizada

Se realiza cata en la zona AB justo debajo de la zona de parking que coincide con la junta de dilatación y la jaula de bicicletas. Se pretende averiguar si hay aislamiento, ya que cuando se producen lluvias, esta zona queda casi siempre anegada. Además en esta zona del enfoscado hay siempre humedad por capilaridad.

Constatamos que no hay impermeabilización

No se ha encontrado la ejecución de una correcta impermeabilización de la junta estructural en el encuentro entre la fachada en la planta baja y el forjado.

Posible solución

La solución correcta para la impermeabilización de una junta estructural consiste en evitar la filtración de agua en el interior. El encuentro entre la fachada y el forjado suele ser siempre un punto de difícil solución, que empeora en el caso de existir una carpintería. A continuación, se adjunta un ejemplo de una junta de dilatación. El diseño final de esta junta depende del movimiento previsto por el calculista y el grado de exposición y solicitación de esta. En la solución realizada en este caso, se confió aparentemente en la canal de desagüe y en la impermeabilización del hormigón hidrofugo (¿?).

Por otro lado tanto esta zona AB com la CD tienen la pendiente hacia la fachada, por lo tanto cuando llueve mucho el agua queda estancada justo en estas zonas. Hay que revisar también las rejillas y la junta de dilatación para ver la mejor opción de impermeabilización desde arriba y no desde la parte de abajo en el parking

Propuesta y presupuesto aporx.

Derribo pavimento 1u 11,00 22,00 m2 € 25,00 € 225,00 Pavimento 1u 11,00m 22,00 m2 € 70,00 € 770,00 Sellado fachadas acceso 1u 19,00 38,00 m € 40,00 € 760,00 Derribo pavimento 1u 19,00m 38,00 m2 € 25,00 € 475,00 Pavimento 1 19,00 m 38,00 m2 € 70,00 € 1.330,00

Total = 3.560 €

Zona CB
Imagen 1
Imagen 2
Imagen 3
Cata realizada

Se realiza cata en la zona AB justo debajo de la zona de parking que coincide con la junta de dilatación y la jaula de bicicletas. Se pretende averiguar si hay aislamiento, ya que cuando se producen lluvias, esta zona queda casi siempre anegada. Además en esta zona del enfoscado hay siempre humedad por capilaridad.

Constatamos que no hay impermeabilización

No se ha encontrado la ejecución de una correcta impermeabilización de la junta estructural en el encuentro entre la fachada en la planta baja y el forjado.

Posible solución

La solución correcta para la impermeabilización de una junta estructural consiste en evitar la filtración de agua en el interior. El encuentro entre la fachada y el forjado suele ser siempre un punto de difícil solución, que empeora en el caso de existir una carpintería. A continuación, se adjunta un ejemplo de una junta de dilatación. El diseño final de esta junta depende del movimiento previsto por el calculista y el grado de exposición y solicitación de esta. En la solución realizada en este caso, se confió aparentemente en la canal de desagüe y en la impermeabilización del hormigón hidrofugo (¿?).

Por otro lado tanto esta zona AB com la CD tienen la pendiente hacia la fachada, por lo tanto cuando llueve mucho el agua queda estancada justo en estas zonas. Hay que revisar también las rejillas y la junta de dilatación para ver la mejor opción de impermeabilización desde arriba y no desde la parte de abajo en el parking

Propuesta y presupuesto aporx.

Derribo pavimento 1u 11,00 22,00 m2 € 25,00 € 225,00 Pavimento 1u 11,00m 22,00 m2 € 70,00 € 770,00 Sellado fachadas acceso 1u 19,00 38,00 m € 40,00 € 760,00 Derribo pavimento 1u 19,00m 38,00 m2 € 25,00 € 475,00 Pavimento 1 19,00 m 38,00 m2 € 70,00 € 1.330,00

Total = 3.560 €

Terrado AB
Problemas sumidero atico 4-2
Problema en atico 4-2
Localización del sumidero en el piso
Tu navegador no soporta la reproducción de videos HTML5.
Prueba de inundación
Tu navegador no soporta la reproducción de videos HTML5.
Resultado de la prueba
Tu navegador no soporta la reproducción de videos HTML5.
Problemas sumidero atico 4-2

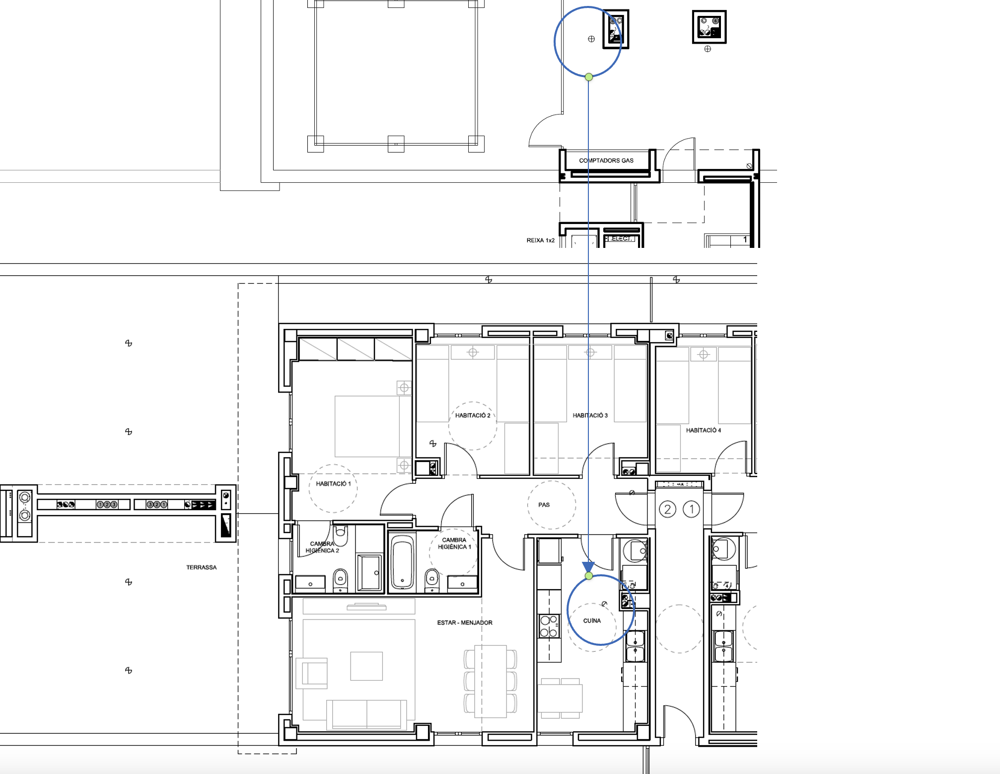
En el plano tenemos la sección de terrado en la parte superior y la sección de 4ª planta en la parte inferior. Se marca la posición del sumidero y su coincidencia con la zona de la cocina en el piso 4-2 donde aparece humedad.

Localización del sumidero en el piso

Mediante acceso por trampilla en la zona de cocina accedemos a la entrada del tubo de desagüe que coincide con el sumidero que hemos inspeccionado en la parte de terrado. Se comprueba que la humedad y el goteo de agua vienen del forjado y que por lo tanto hay filtración por lo menos en la zona del sumidero.

Prueba de inundación

Para descartar que haya filtración en otras zonas que no sean los sumideros, se realiza prueba de inundación, tapando los sumideros con globos de aire. Al tapar los globos, podemos saber si hay filtración en otras zonas o corroborar la teoria de que al llover mucho, los desagües colapsan y el agua rebosa hacia el sumidero. Al no estar sellado correctamente, el agua empaparía la tela textil que está por debajo de la lona y luego empezaria a filtrar poco a poco por el forjado a través del agujero para el sumidero.

Resultado de la prueba

Al hacer la prueba de inundación, se comienzan a ver al dia siguiente filtraciones abundantes de agura hacia el otro ático 4-1, que descartan la teoria del problema del sumidero y, en el caso de este terrado, confirma que hay filtraciones por algun otro punto. Por tanto, la única solución es rehacer ese terrado.

Propuesta y presupuesto aporx.

Se plantea proyecto para desmontar elementos del terrado y rehacer mediante otro tipo de material.

Total = 35.000 €

Terrado D
Problemas sumidero atico 4-1
Problema en atico 4-1 Problema en atico 4-1
Localización del sumidero en el piso
Tu navegador no soporta la reproducción de videos HTML5.
Cata de la lona
Tu navegador no soporta la reproducción de videos HTML5.
Problemas sumidero atico 4-1

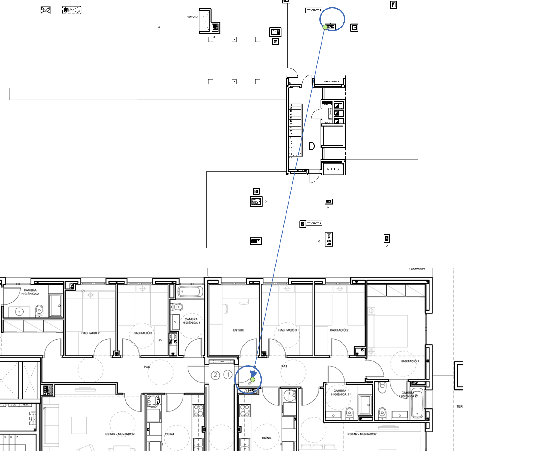
En la primera imagen vemos superpuesto la planta terrado y la planta 4 de zona CD atico 4-1. En plano se comprueba que la zona de humedad localizada en el piso coincide próxima a uno de los sumideros. Creemos que el problema es la filtración de agua por debajo de la lona.

Localización del sumidero en el piso

Durante la prueba de inundación comprobamos que el niel de goteo, con todo el terrado inundado, es leve. Por tanto, al no producirse filtraciones mayores en el resto del áticos ni del piso en cuestión, llegamos a la conclusión que el goteo se está produciendo por la presión que ejerce la lona inundada contra la tela textil que ya estaba húmeda por las lluvias previas.

Cata de la lona

Prévio a la inundación del terrado CD, se sealiza una cata, para comprobar que la textil de debajo está húmeda. La conclusión a la que se llega después de la prueba de inundación es que, en este terrado, el problema se encuentra en el sumidero y la mala finalización del mismo. Se descartan filtraciones desde otros puntos. No se aprecia humedad mayor en el 4-2, que ya era leve en un principio.

Propuesta y presupuesto aporx.

Se plantea realizar un sellado de los sumideros para evitar que en dias de lluvia abundante (DANAS), el agua retorne y salga por debajo de la lona a través del sumidero. Se estima un coste de 500€ por sumidero.

Total 500 x 5 = 2500 €

Junta dilatación AB
Desplazamiento de los bloques i abertura de la junta de dilatación
Junta dilatación
Junta dilatación
Zona de embellecedores por donde filtra hacia el parking
Junta dilatación
Solución insuficiente por parte del construcctor
Junta dilatación Junta dilatación Junta dilatación
Desplazamiento de los bloques i abertura de la junta de dilatación

En las primeras imágenes se ve que el estado de la junta en esta zona es bastante peor que en zona CB. Es debido al movimiento de asentamiento del edificio. Según manual de uso del edificio, la junta debe repasarse cada 5 años.

Zona de embellecedores por donde filtra hacia el parking

La zona de aluminio tapa la junta, pero tenemos el mismo problema en el encuentro del pavimento con la fachada. No hay impermeabilización. Habrá que levantarlo para sellar bien desde la parte de arriba.

Solución insuficiente por parte del construcctor

En las siguientes imágenes se muestra la solución que aportó el constructor que se basa en recoger el agua que filtra desde abajo, en el parking y canalizarla. Se aprecian diferentes intervenciones i en algunas con material no adecuado como pladur. Igualmente, hay zonas (columnas) donde no pueden hacer el recorrido completo. Esto proboca encharcamientos continuos en la jaula de bicicletas de la escalera B cuando llueve.

Propuesta y presupuesto aporx.

Junta estructural: 4.400 €

Juntas dilatación: 1.120 €

Cesta elevadora: 250 €

Total = 5.770 €

Junta dilatación AB
Abertura de la junta de dilatación
Junta dilatación
Junta dilatación
Abertura de la junta de dilatación

En este caso la junta no presenta el mismo desplazamiento que la de zona B, pero hay que repasarla al igual que la parte de los embellecedores de aluminio, que tienen el mismo problema que la zona B. En este caso la filtración afecta a la pared de entrada a parking en la escalera C

Propuesta y presupuesto aporx.

Entraria en la estimación hecha para la zona AB

Junta dilatación AB
Posibles zonas de filtración hacia plaza 16 de parking
Plaza 16
Plaza 16
Plaza 16
Video de la filtración
Tu navegador no soporta la reproducción de videos HTML5.
Posibles zonas de filtración hacia plaza 16 de parking

Como vemos en la imagen, hay aberturas (entrada de tubos de gas), desplazamiento del pavimento, justo en la zona prósima a las filtraciones en parking de la plaza 16. En el video se muestra como cae el agua a traves de la abertura para los tubos de desagüe.

Junta dilatación AB
Obstrucción sumideros de las rejillas exteriores para agua pluvial
Rejas canalización agua
Obstrucción sumideros de las rejillas exteriores para agua pluvial

Esta zona del plano queda anegada cada vez que llueve. Se han comprobado las rejillas, y los sumideros están llenos de lodo. En la imagen se puede ver la cesta de plastico que evita que entren objetos grandes, pero hay que limpiar el tubo obstruido. Se contempla pedir un presupuesto con una empresa diferente a Aqualit que, a parte de los bajantes del parking, realice la limpieza de estas zonas y de los registros de alcantarillado exteriores.